Via Toscana (Via Buvalelli) In silenzioso interno bilocale luminoso

Posizione immobile
Hai un immobile simile o nella stessa zona e desideri venderlo?

Compila il modulo o scrivici al:
+39 342 7512118 (WhatsApp)

Bilocale in ottime condizioni pronto da abitare parzialmente arredato con riscaldamento autonomo e comodo posto auto

  Bologna BO - Toscana, Savena
€ 135.000,00

Descrizione

Via Toscana laterale (Via Buvalelli)
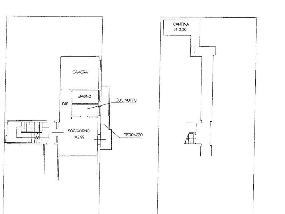
In strada chiusa appartamento silenzioso in ottime condizioni, pronto da abitare composto da: ingresso su ampio soggiorno con balcone, cucinotto arredato, camera matrimoniale, bagno, riscaldamento autonomo, cantina, posto auto assegnato in cortile condominiale chiuso. Ape G Ipe 272 € 135.000
Per Informazioni e visite Immagina Bologna Tel.051.480459  Cell. 335.472874

 

Caratteristiche
  • Locali 2
  • Bagni 1
  • Metri quadri 55
  • Numero piani Rialzato
  • Cantina 1
  • Garage parcheggio Posto auto assegnato in cortile interno chiuso con cancello elettrico
  • Condizioni interne Ottimo pronto da abitare
  • Ascensore no
  • Riscaldamento Autonomo
  • Giardino Condominiale
  • Entrata Da vano scale comune
  • Class. Energetica G
  • Ep KW/h Mq anno 272
  • Stato della vendita VENDUTO
Go Top   →
Informativa

Noi e terze parti selezionate (come ad esempio Google, Facebook, LinkedIn, ecc.) utilizziamo cookie o tecnologie simili per finalità tecniche e, con il tuo consenso, anche per altre finalità come ad esempio per mostrati annunci personalizzati e non personalizzati più utili per te, come specificato nella .
Chiudendo questo banner con la crocetta o cliccando su "Rifiuta", verranno utilizzati solamente cookie tecnici. Se vuoi selezionare i cookie da installare, clicca su "Personalizza". Se preferisci, puoi acconsentire all'utilizzo di tutti i cookie, anche diversi da quelli tecnici, cliccando su "Accetta tutti". In qualsiasi momento potrai modificare la scelta effettuata.