San Ruffillo 4 locali con riscaldamento autonomo

Posizione immobile
Hai un immobile simile o nella stessa zona e desideri venderlo?

Compila il modulo o scrivici al:
+39 342 7512118 (WhatsApp)

Vendesi in via Toscana appartamento quadrilocale con affacci interni e silenziosi

  Bologna BO - Toscana, Savena
€ 198.000,00

Descrizione

SAN RUFFILLO VIA TOSCANA
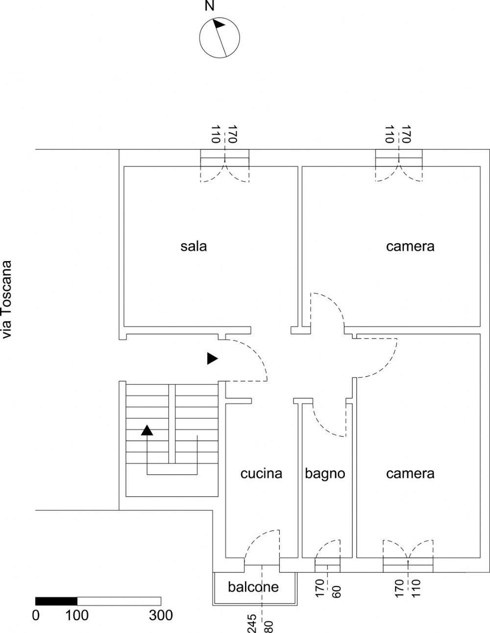
VIR177 Via Toscana ad.ze via Fantini. Posto nelle immediate vicinanze del mercatino rionale di San Ruffillo e con doppio affaccio sul cortile interno e sulla piazzetta della chiesa, proponiamo appartamento 4 locali in buone condizioni ed abitabile fin da subito. Attualmente l’appartamento è affittato con una buona rendita (€ 7.600 annui) e sarà liberato tra un anno, ad ottobre 2023. L’immobile è composto da ingresso, cucina semiabitabile, sala, due camere matrimoniali, bagno, balcone e cantina. Il riscaldamento è autonomo, gli impianti sono a norma e le spese condominiali sono basse. L’appartamento grazie agli affacci interni risulta essere molto luminoso e silenzioso. Ape E. Ipe 163. € 198.000. Per informazioni Immagina Bologna 051.480459 - 342.7512118 Galleria fotografica su www.immaginabologna.it. € 198.000

Caratteristiche
  • Locali 4
  • Bagni 1
  • Metri quadri 79
  • Numero piani Secondo senza ascensore
  • Terrazza balcone Balcone
  • Cantina Si. Non ciclabile
  • Garage parcheggio Posti auto in cortile
  • Condizioni interne Buone. Abitabile da subito
  • Ascensore NO
  • Riscaldamento Autonomo
  • Entrata Condominiale
  • Class. Energetica E
  • Ep KW/h Mq anno 165
  • Stato della vendita VENDUTO
Go Top   →
Informativa

Noi e terze parti selezionate (come ad esempio Google, Facebook, LinkedIn, ecc.) utilizziamo cookie o tecnologie simili per finalità tecniche e, con il tuo consenso, anche per altre finalità come ad esempio per mostrati annunci personalizzati e non personalizzati più utili per te, come specificato nella .
Chiudendo questo banner con la crocetta o cliccando su "Rifiuta", verranno utilizzati solamente cookie tecnici. Se vuoi selezionare i cookie da installare, clicca su "Personalizza". Se preferisci, puoi acconsentire all'utilizzo di tutti i cookie, anche diversi da quelli tecnici, cliccando su "Accetta tutti". In qualsiasi momento potrai modificare la scelta effettuata.